Five Stone Hotel Architectural Detail Design
Location : Baku | Area : 175000 m² | Function : 5 star Hotel | Condition : Designed & Approved | Coordination & Architectural Detail Design : Reza Eslami | Drawings : Tarlan Sedigh Zendeh, Yasaman Ali Akbarzadeh , Saied Dorostkar , Amin Reza zadeh
Main Consultant : Isatis Company, (Mr. Mahmoudi & Ms. Sorour)
Project Manager : Mohammad Abdollah Zadeh
BIM Modeling : Bonro Co. (Amir Karami)
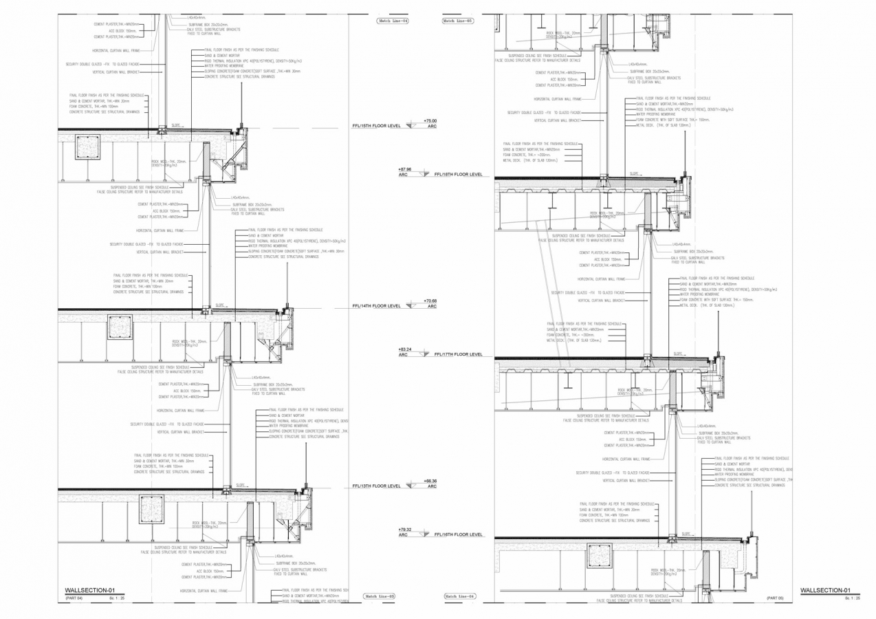
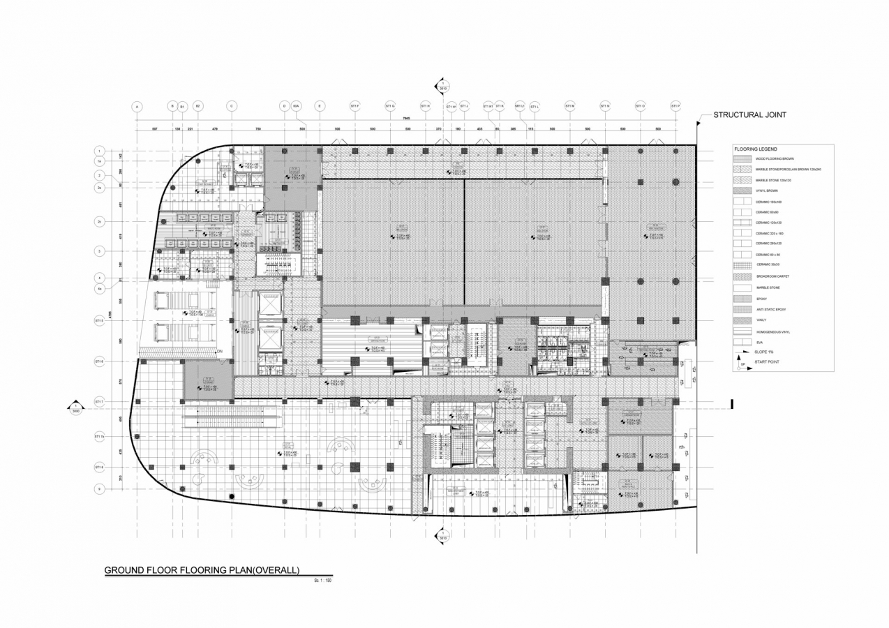
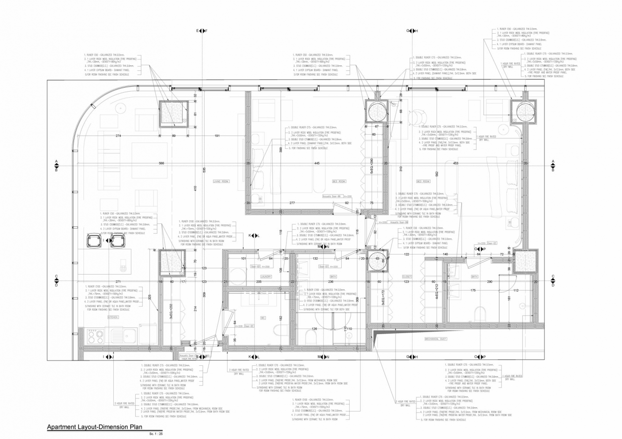
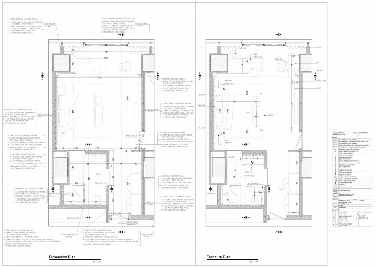
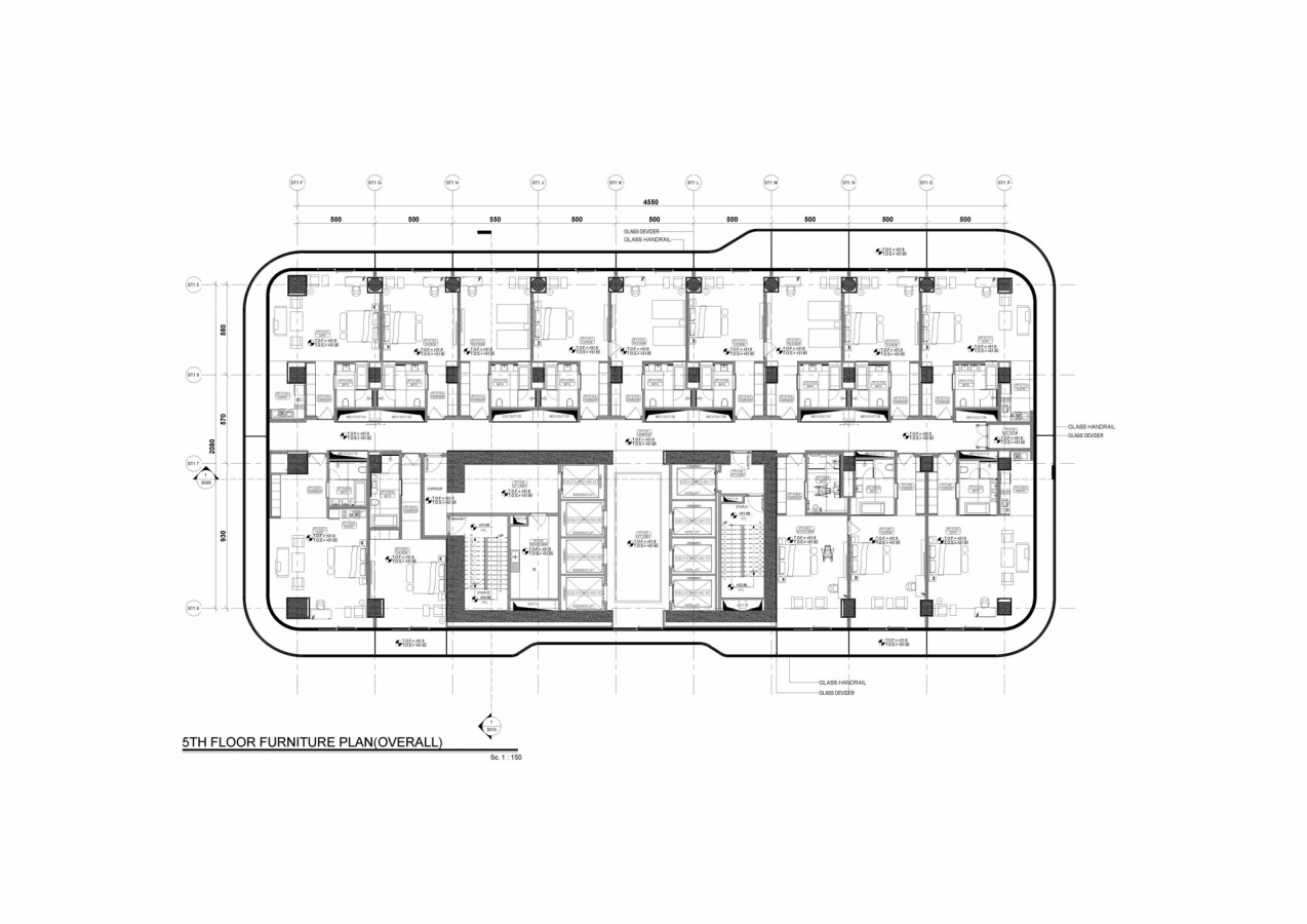
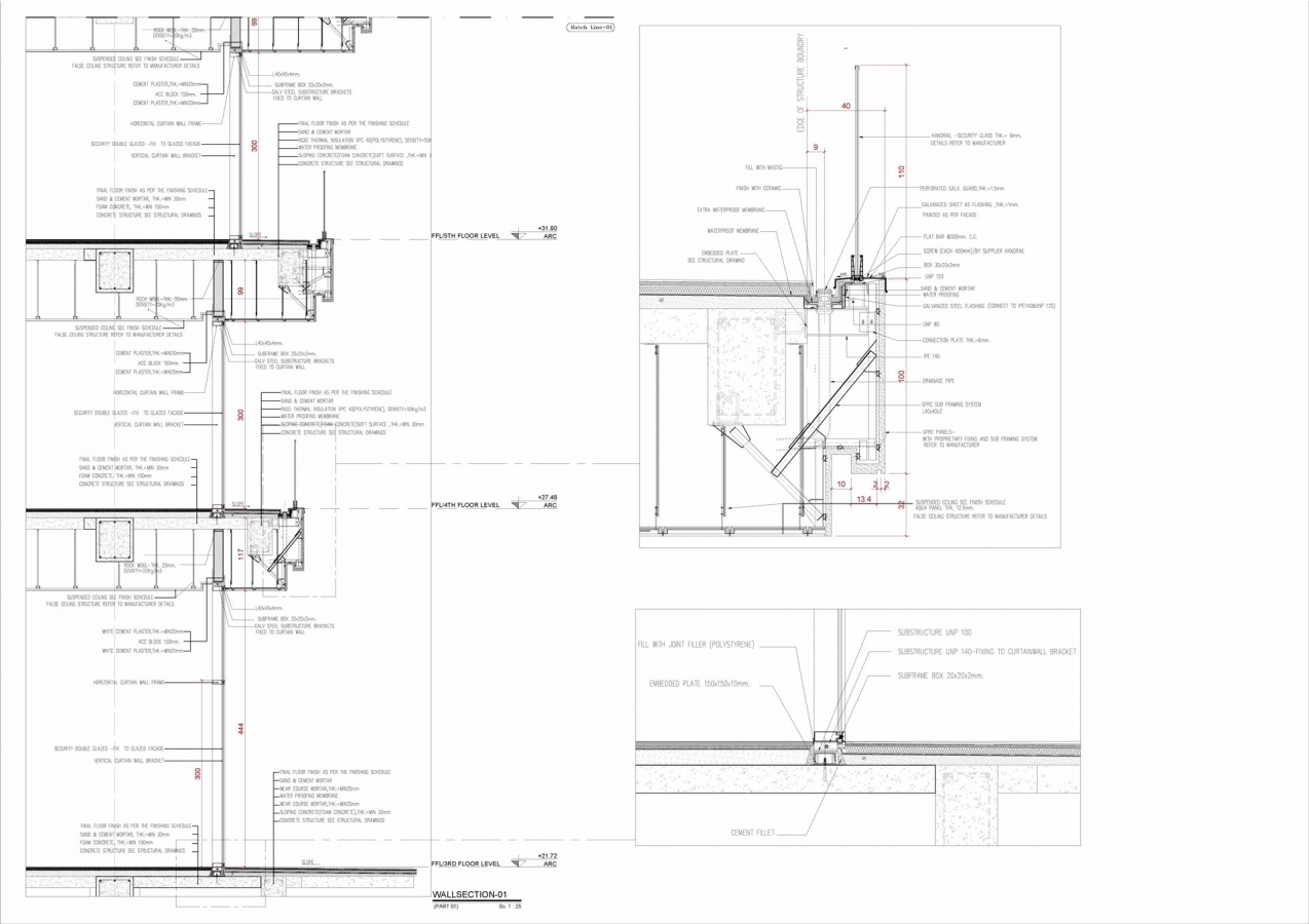
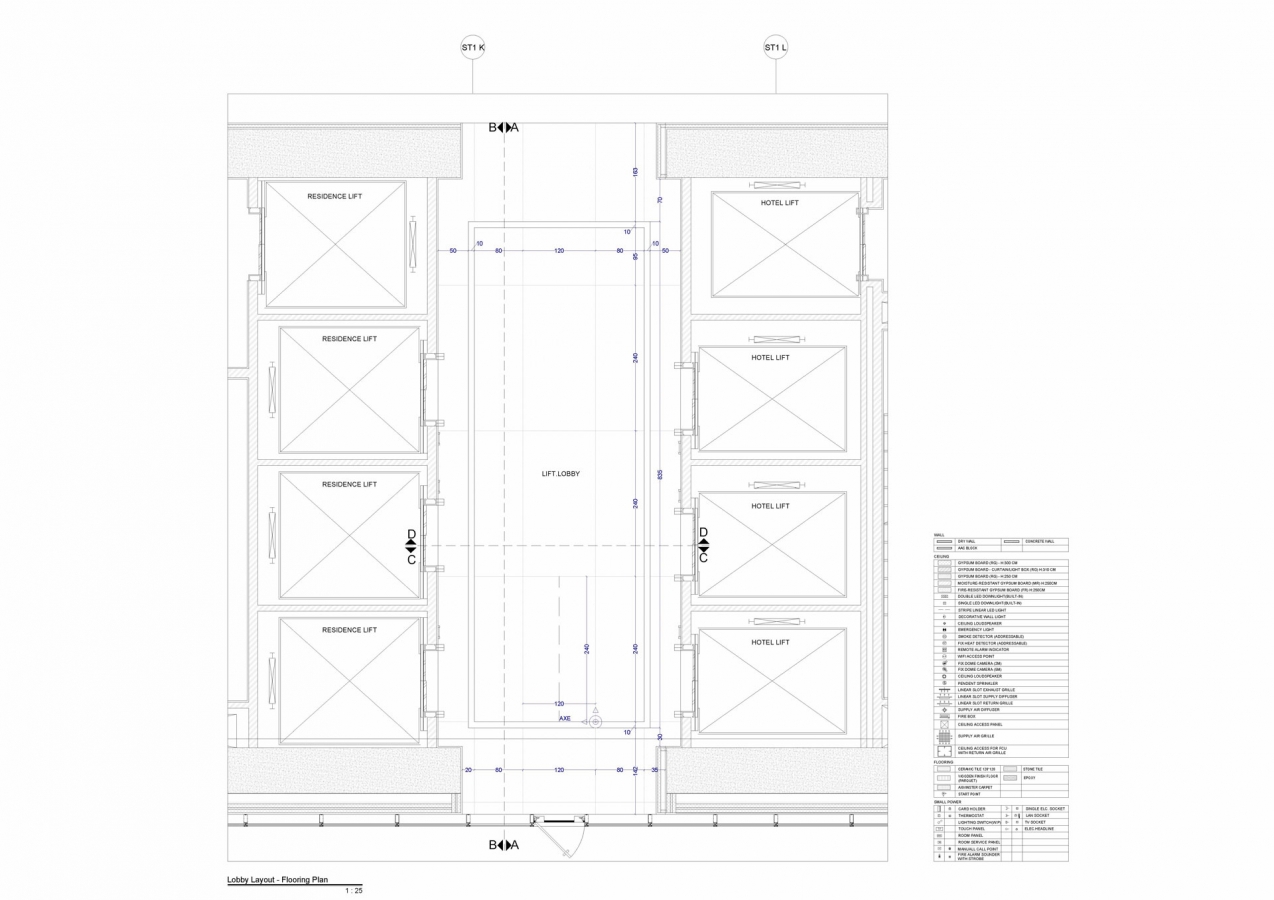
The Five Stone Five-Star Hotel in Baku stands as one of the most prominent hospitality and leisure developments in the region, with a total built-up area of approximately 175,000 square meters across 22 floors. The detailed design development, inter-disciplinary coordination, and architectural execution drawings of the project were undertaken by DASH Architects, led by Reza Eslami. The primary objective of this phase was to translate the conceptual and schematic design into the language of construction—a process in which every architectural, structural, and MEP element is meticulously defined, resolved, and documented to ensure full buildability on site. The execution drawings were developed in compliance with both Iranian National Building Regulations and international standards such as NFPA, ASHRAE, ACI, and ASTM, guaranteeing the highest levels of quality, safety, and durability.
Within this scope, DASH Architects ensured complete coordination between architectural, structural, and engineering disciplines, producing realistic and construction-ready details based on locally available materials and technologies. The deliverables emphasize clarity, cost efficiency, and technical precision, minimizing rework and misinterpretation during construction. The result is a comprehensive set of execution documents that bridge design intent and practical realization—turning the architectural vision into a reliable, buildable reality.
طراحی جزییات اجرایی هتل پنج ستاره فایو استون
موقعیت : باکو | متراژ : 175 هزار متر مربع | تعداد طبقه : 22 طبقه | کاربری: هتل پنج ستاره | وضعیت: طراحی و تایید شده | کنترل و هماهنگی بین دیسیپلینی و طراحی جزییات اجرایی معماری : رضا اسلامی | ترسیمات فنی : ترلان صدیق زنده و یاسمن علی اکبر زاده، سعید درستکار، امین رضا زاده
شرکت مشاور اصلی : شرکت ایساتیس ، جناب آقای مهندس محمودی و خانم مهندس سرور
مدیر پروژه : مهندس محمد عبدالله زاده
مدلسازی رویت سازه و معماری : شرکت بن رو (مهندس کرمی)
پروژهی هتل پنجستاره فایو استون در شهر باکو، یکی از شاخصترین پروژههای گردشگری و اقامتی منطقه است که با زیربنای حدود ۱۷۵ هزار مترمربع در ۲۲ طبقه طراحی شده است. طراحی جزییات اجرایی و کنترل هماهنگی بین دیسیپلینهای مختلف این پروژه، توسط مهندسین مشاور دَش و با هدایت رضا اسلامی انجام شده است.
در این مرحله، هدف اصلی تیم طراحی، ترجمهی طرح مفهومی و فاز یک به زبان اجرا بود؛ فرآیندی که در آن، تمامی اجزای پروژه — از پوسته و سازه تا جزئیات داخلی و تأسیسات — بهصورت دقیق، واقعگرایانه و قابل پیادهسازی در کارگاه تعریف شدند. نقشههای اجرایی فاز دو با تأکید بر استانداردهای بینالمللی و انطباق با آییننامههای ملی و بینالمللی نظیر NFPA، ASHRAE، ACI و ASTM تهیه گردیدند تا اطمینان از کیفیت، دوام و ایمنی مجموعه در بالاترین سطح ممکن حاصل شود.
در این پروژه، مهندسین مشاور دَش ضمن ایجاد هماهنگی بین رشتههای معماری، سازه و تأسیسات، تمامی دیتیلها را بر اساس مصالح قابل تأمین و فناوریهای موجود در بازار منطقه تعریف کردهاند. وضوح در نقشهها، قابلیت استعلامگیری دقیق، و کاهش دوبارهکاریهای کارگاهی از دیگر اهداف کلیدی این فاز بوده است. نتیجه، مجموعهای از مدارک اجرایی منسجم، خوانا و دقیق است که تضمینکنندهی تحقق طراحی مفهومی در مرحلهی ساخت میباشد.
































