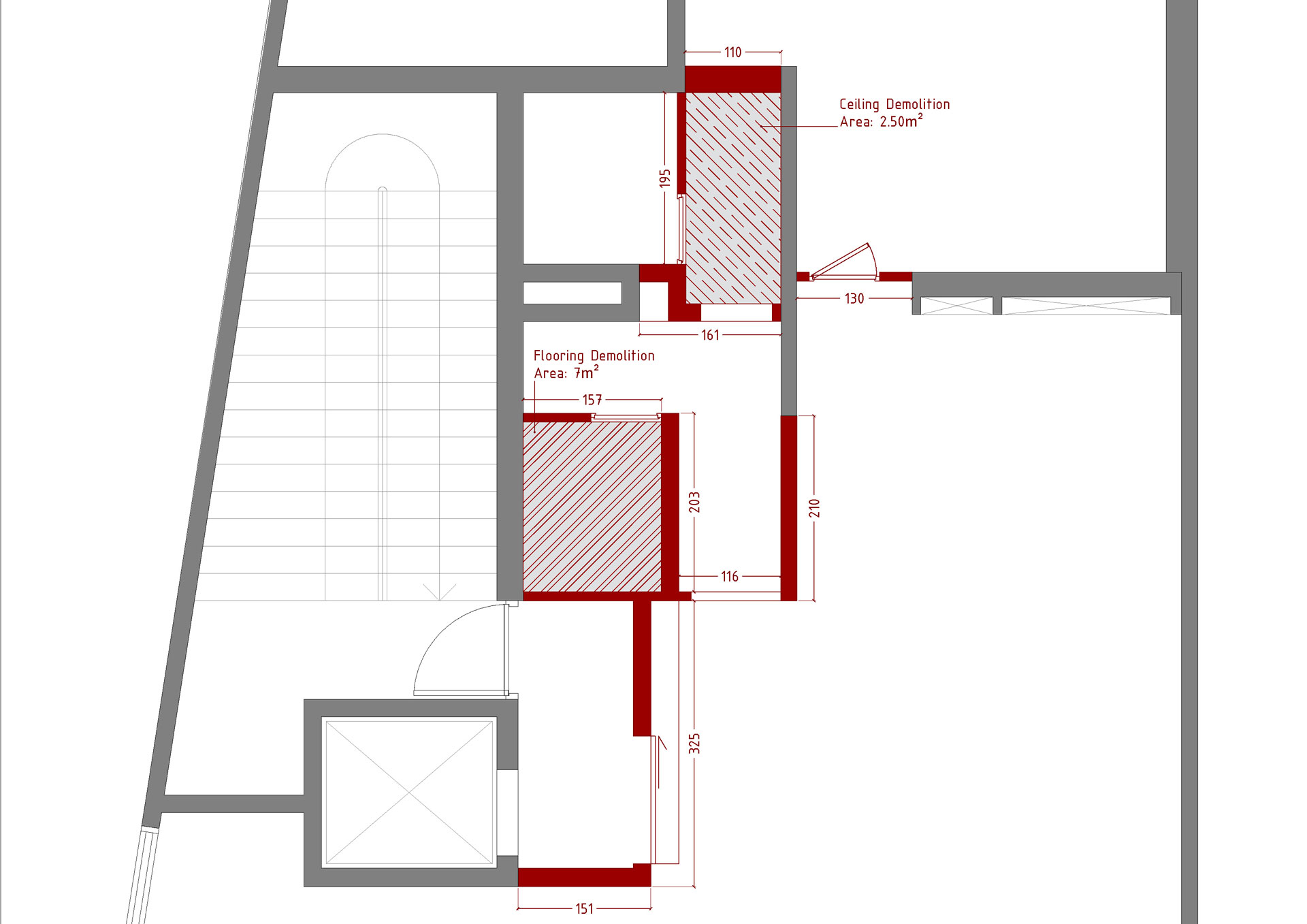
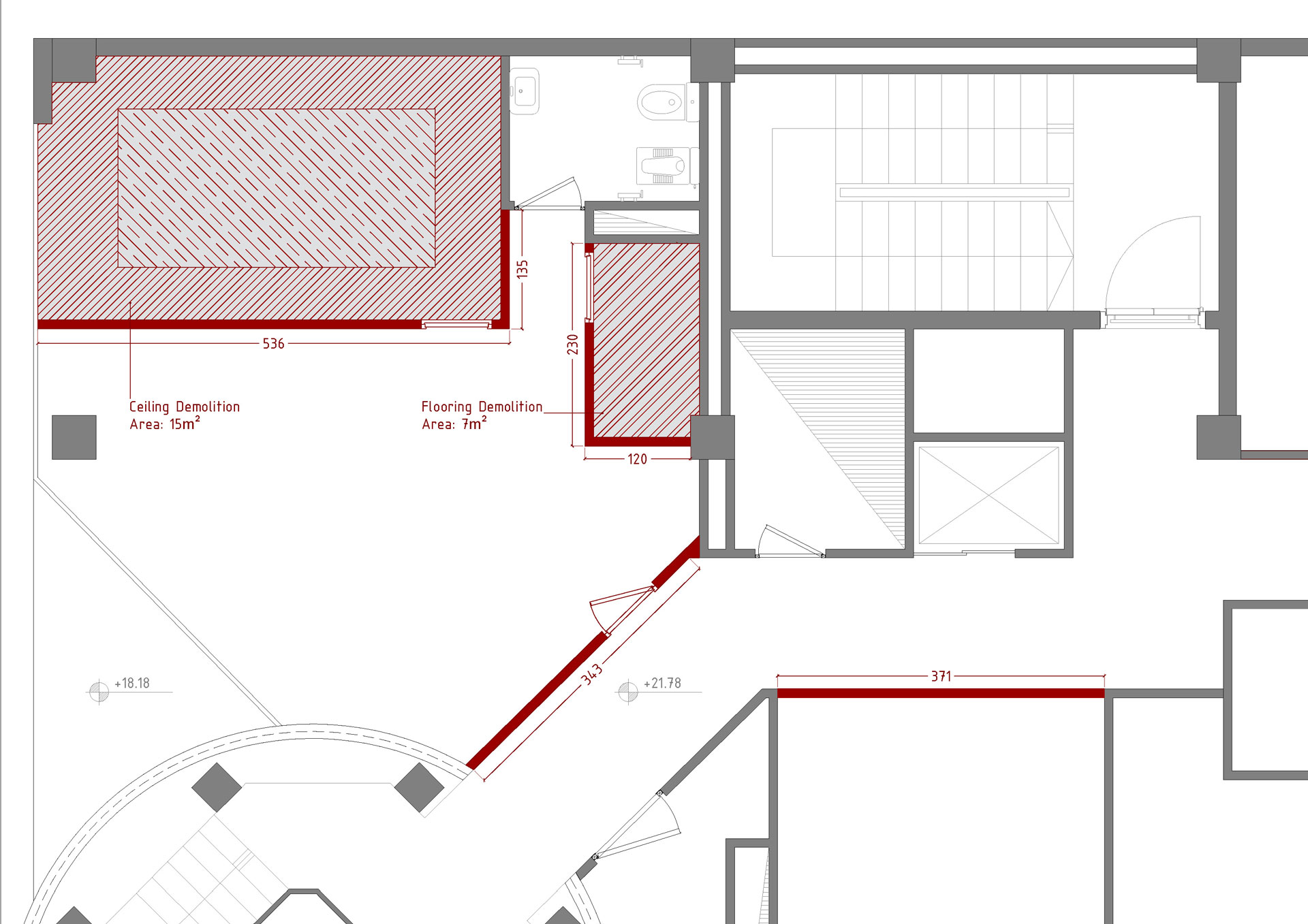
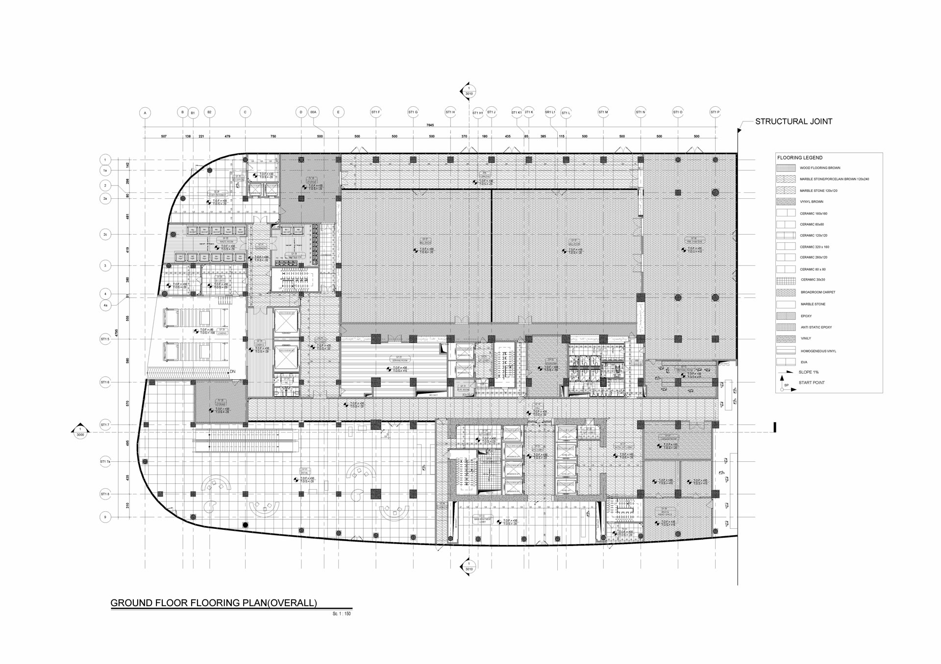
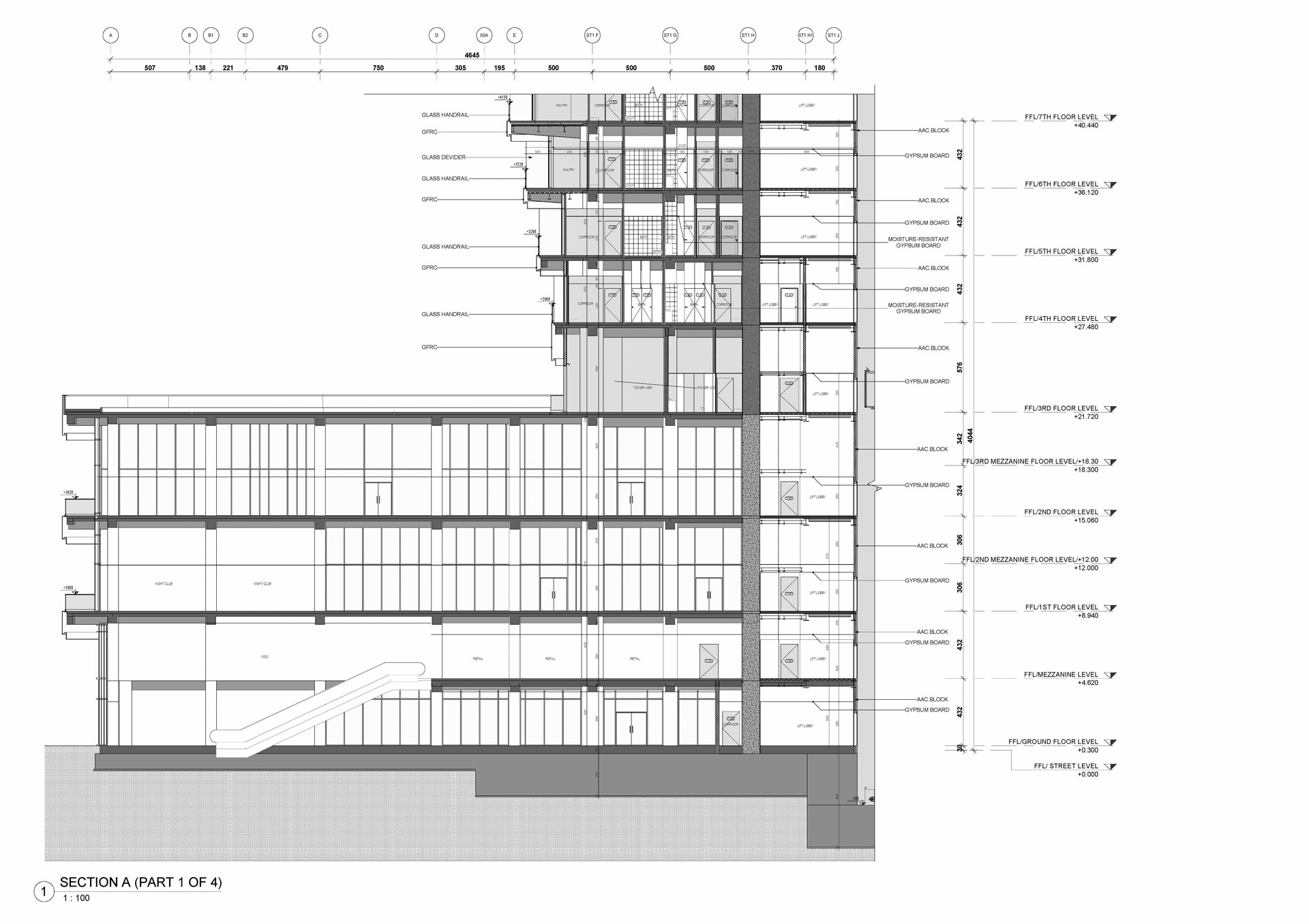
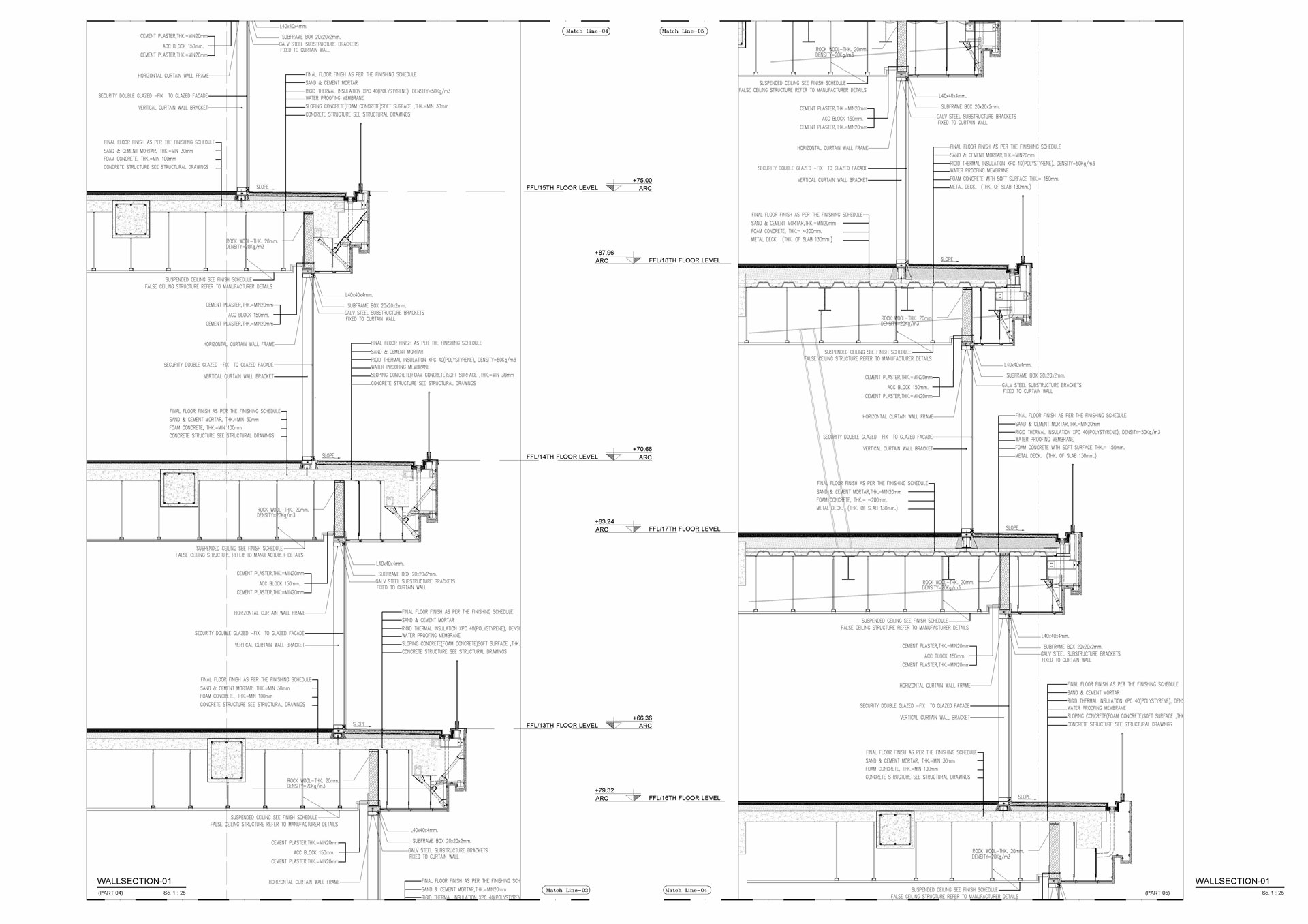
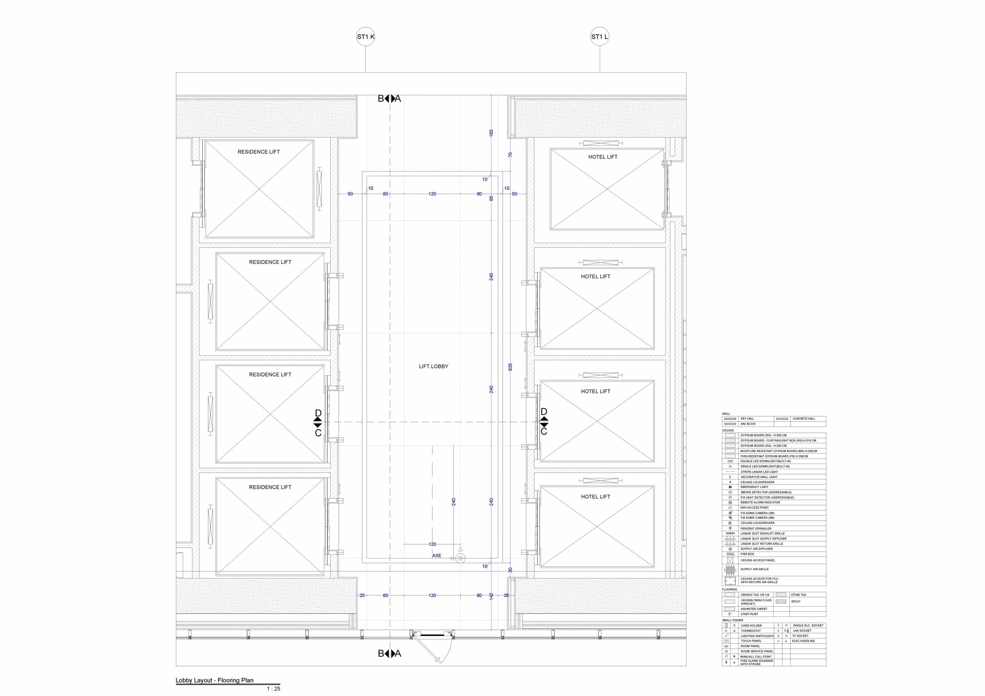
در فاز دو معماری (نقشههای اجرایی) چه میکنیم؟
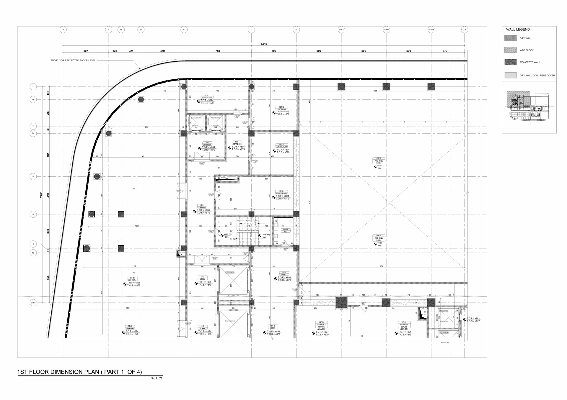
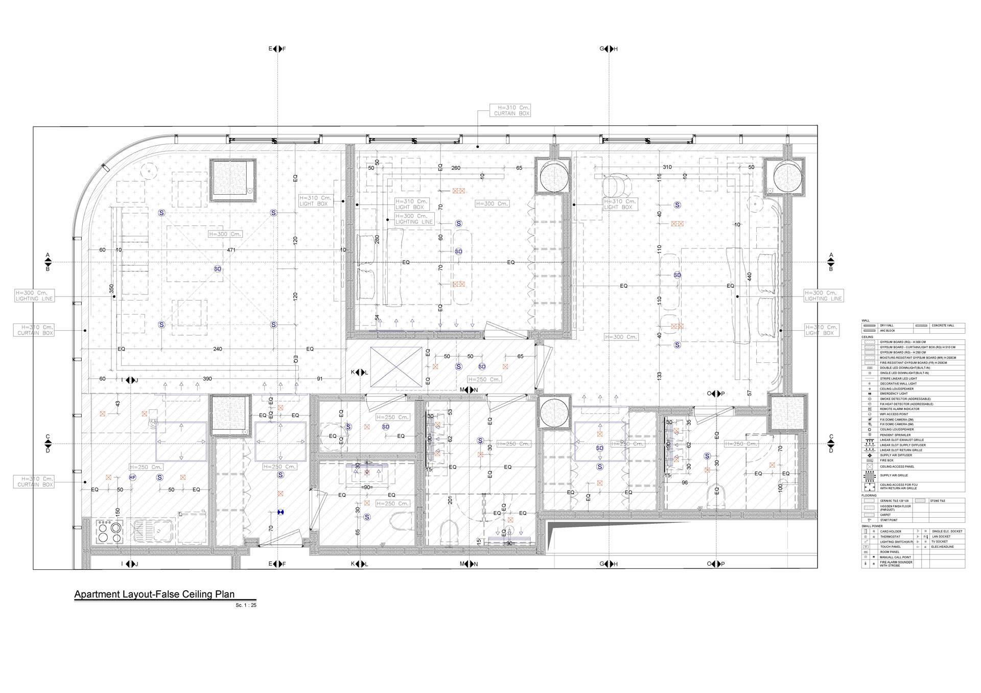
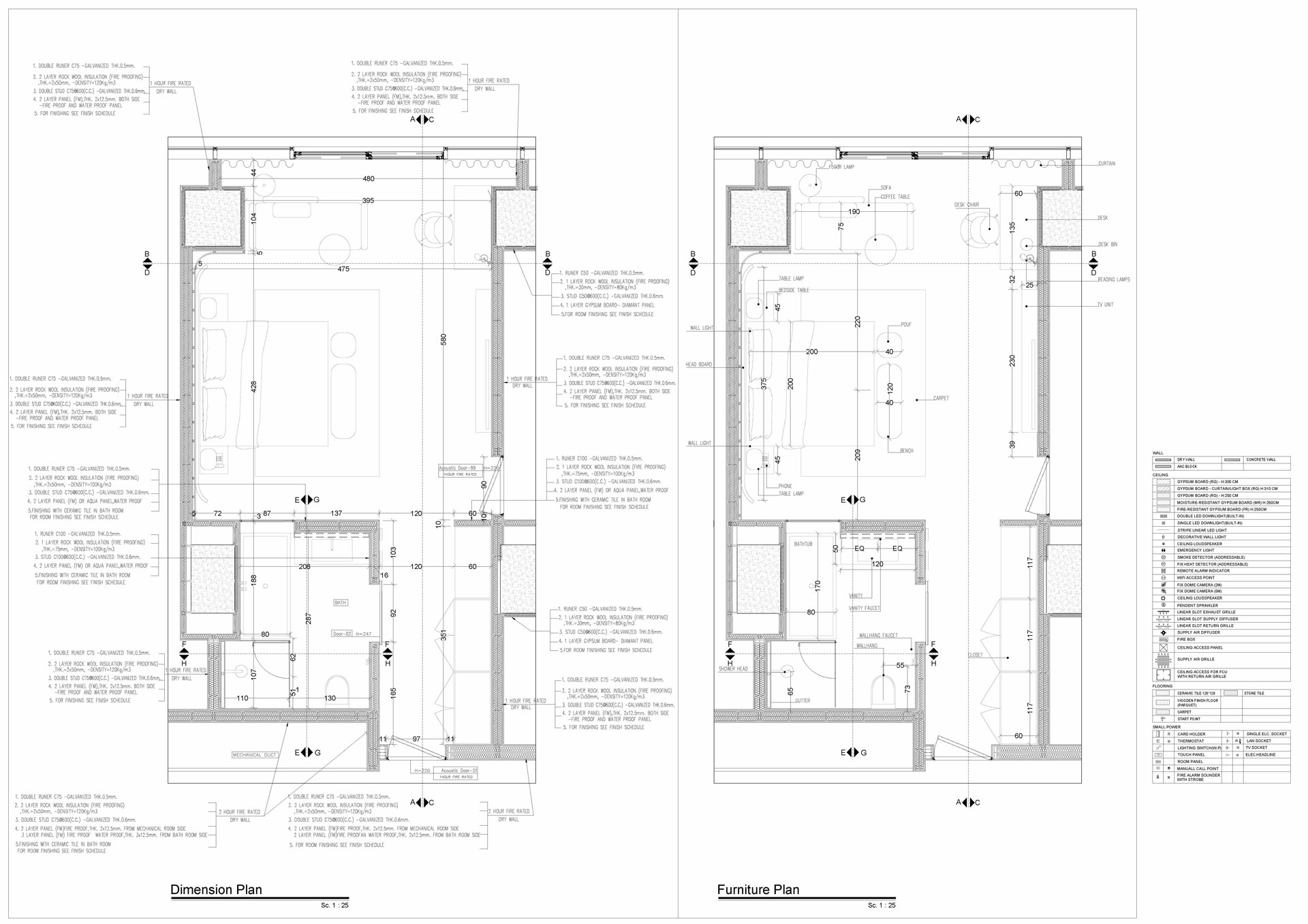
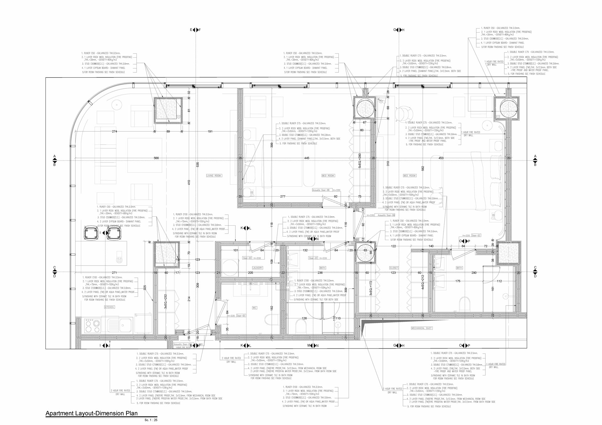
پاسخ ساده این است که در فاز دو معماری، ما طراحی مفهومی و فاز یک را به زبان اجرا ترجمه میکنیم. در این مرحله همه مسائل اجرایی ساختمان پیشبینی و حل میشوند و نقشههایی دقیق، خوانا و مبتنی بر واقعیات کارگاهی تهیه میگردند. این نقشهها پلی هستند که ایدهها را به اسناد اجرایی قابل اعتماد و قابل پیادهسازی در کارگاه تبدیل میکنند.
اهداف و ویژگیهای نقشههای فاز دو معماری در دَش:
-
ایجاد هماهنگی بین رشتهها: یکپارچهسازی معماری، سازه و تأسیسات مکانیکی و برقی بهگونهای که هیچگونه تداخل یا تضادی در زمان اجرا رخ ندهد.
-
انطباق با آییننامهها و استانداردها: طراحی و ترسیم نقشهها بر اساس مباحث مقررات ملی ساختمان (بهویژه مباحث ۳، ۴، ۱۳، ۱۴، ۱۵، ۱۹ و ۲۱) و در صورت نیاز، انطباق با استانداردهای بینالمللی مانند NFPA، ASHRAE، ACI و ASTM.
-
جزئیات اجرایی واقعبینانه: تعریف روشهای ساخت و دیتیلهای اجرایی بر اساس مصالح و تکنولوژیهای موجود و قابل تأمین در بازار پروژه.
-
کاهش خطا و دوبارهکاری: شناسایی چالشها پیش از ورود به کارگاه و طراحی راهکارهای اجرایی برای جلوگیری از اتلاف زمان و هزینه.
-
قابلیت استعلام و مقایسه قیمت: تهیه نقشههای تفکیکی بر مبنای حوزههای کاری پیمانکاران، برای اخذ استعلام شفاف و رقابتی.
-
وضوح در اجرا: ترسیم نقشههایی که خوانا، قابل فهم و بدون برداشتهای چندگانه برای مجریان و ناظران باشند.
-
کنترل و بهینهسازی هزینهها: طراحی با نگاه اقتصادی، انتخاب دیتیلها و مصالحی که ضمن حفظ کیفیت، از افزایش غیرضروری هزینهها جلوگیری کنند.























































