Master Plan and Architectural Design of the “Mehr Bandar Anzali” Camp – Iranian Red Crescent Society, Sangachin
Location : Bandar-Anzali | Area : 90000 m² | Function : Mixed-Use | Condition : Designed & Approved
Architectural Design : Reza Eslami | Project Manager : Mehdi Pour Amin | Modeling & Rendering : Amin Rezazadeh, Saied Dorostkar | Drawings: Yasaman Ali Akbar Zadeh
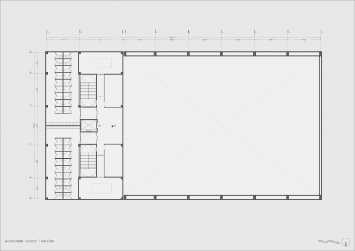
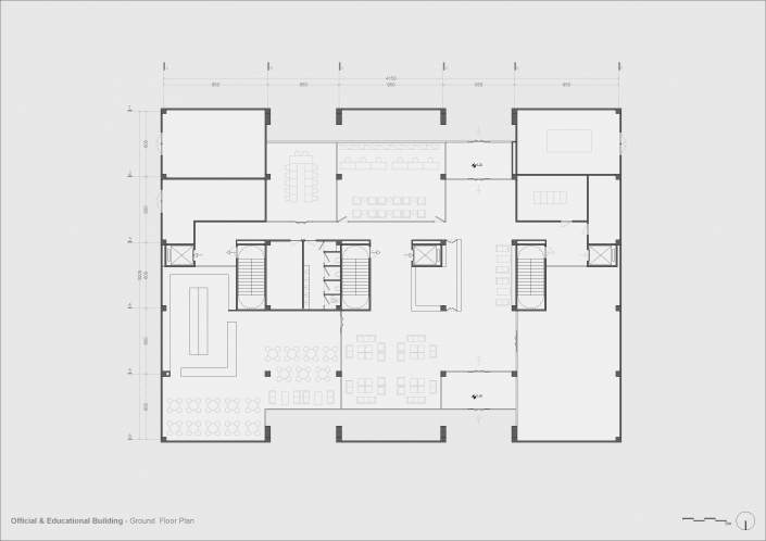
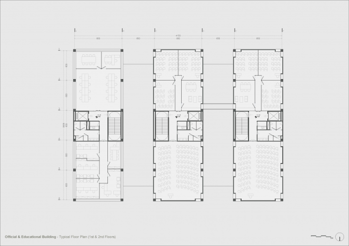
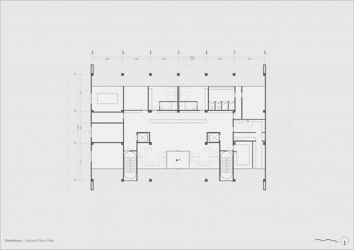
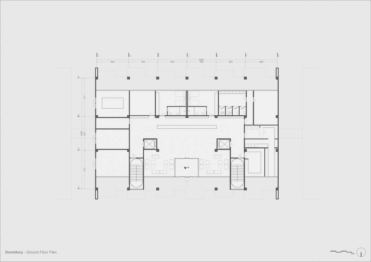
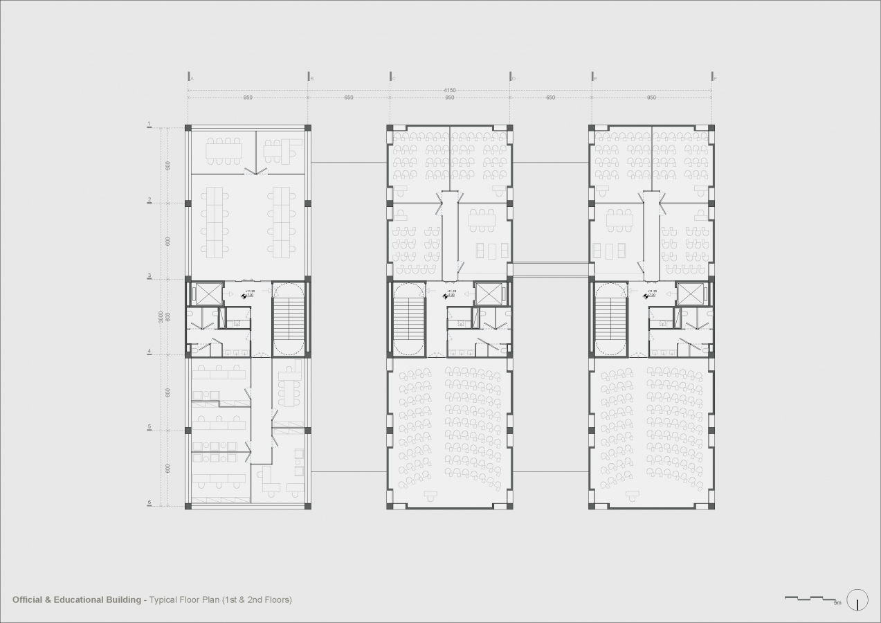
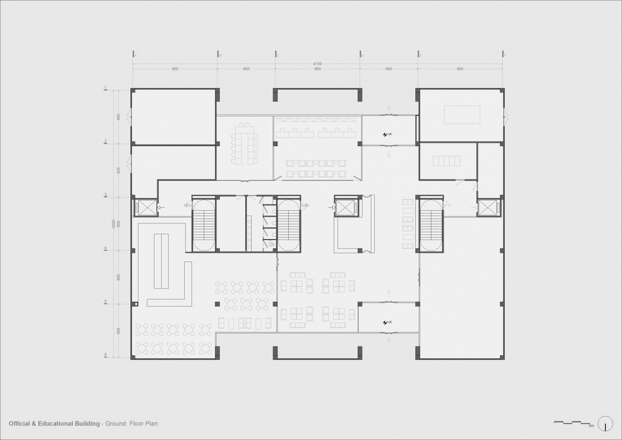
The comprehensive design project of the Mehr National Camp of the Iranian Red Crescent Society, located in the coastal area of Sangačin, Bandar Anzali, represents one of our most extensive and complex national-scale assignments. Covering a site of 9 hectares, the project was preceded by thorough preliminary studies including environmental assessments, capacity analysis, client needs evaluation, and benchmarking of comparable domestic and international cases. Based on these studies, a flexible and holistic master plan was developed, featuring detailed zoning and a wide variety of functions ranging from educational and relief-training facilities to residential, sports, cultural, recreational, and service-oriented spaces. The design approach was rooted in addressing the organizational mission of the Red Crescent—such as field training and rescue maneuvers—while also enabling public use and revenue-generating opportunities. In addition to the master plan, key buildings and structures were designed, including conference and workshop halls, group and villa-type accommodations, service and support facilities, as well as marine structures such as piers and coastal walkways. The project integrates principles of contemporary architecture with the regional identity, while ensuring scalability and adaptability for future expansion. The Mehr Sangačin Camp stands as a reference project that demonstrates our capability in managing comprehensive preliminary studies, coordinating across multiple disciplines, and delivering high-quality large-scale designs for institutional and national clients.
طراحی مستر پلان و ساختمان های اردوگاه “مهر بندر انزلی” جمعیت هلال احمر سنگاچین
موقعیت : بندر انزلی | متراژ : 90000 متر مربع | کاربری: مختلط | وضعیت: طراحی و تایید شده
طراحی معماری : رضا اسلامی | مدیر پروژه : مهدی پور امین | مدلسازی و رندرینگ : امین رضا زاده ، سعید درستکار | ترسیمات فنی : یاسمن علی اکبر زاده
–
پروژه طراحی جامع اردوگاه کشوری مهر جمعیت هلال احمر در منطقه ساحلی سنگاچین بندر انزلی، یکی از گستردهترین و پیچیدهترین طرحهای مطالعاتی و طراحی ما در مقیاس ملی محسوب میشود. این سایت با وسعت ۹ هکتار، پس از انجام مطالعات مقدماتی شامل بررسیهای محیطی، ظرفیتسنجی، نیازسنجی کارفرما و تحلیل نمونههای مشابه داخلی و خارجی، وارد مرحله طراحی شد. نتیجه این مطالعات، شکلگیری مسترپلانی جامع و انعطافپذیر بود که پهنهبندی دقیق و طراحی فضاهای متنوع را در بر میگیرد؛ از کاربریهای آموزشی و امدادی گرفته تا اقامتی، ورزشی، فرهنگی، تفریحی و خدماتی.
رویکرد طراحی بر پایه پاسخگویی همزمان به مأموریتهای سازمانی هلال احمر (مانند آموزشهای میدانی و مانورهای امداد و نجات) و امکان بهرهبرداری عمومی و درآمدزایی مجموعه استوار بوده است. در این طرح علاوه بر مسترپلان، ساختمانها و فضاهای شاخصی همچون سالنهای همایش و کارگاهی، اقامتگاههای گروهی و ویلایی، فضاهای خدماتی و پشتیبانی، و سازههای دریایی نظیر اسکله و مسیرهای پیادهروی ساحلی طراحی شدهاند. توجه به اصول معماری معاصر در کنار بهرهگیری از هویت بومی منطقه، و همچنین پیشبینی قابلیت توسعه و گسترش آتی، از ویژگیهای کلیدی این پروژه به شمار میرود. اردوگاه مهر سنگاچین، بهعنوان یک پروژه مرجع، بیانگر توانایی ما در مدیریت مطالعات مقدماتی، هماهنگی بین دیسیپلینهای مختلف، و ارائه طرحهای کلانمقیاس با کیفیت بالا برای کارفرمایان سازمانی و ملی است.























































