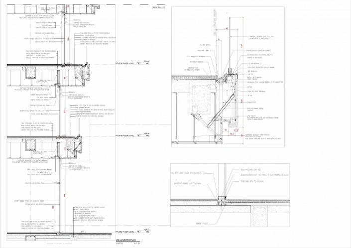
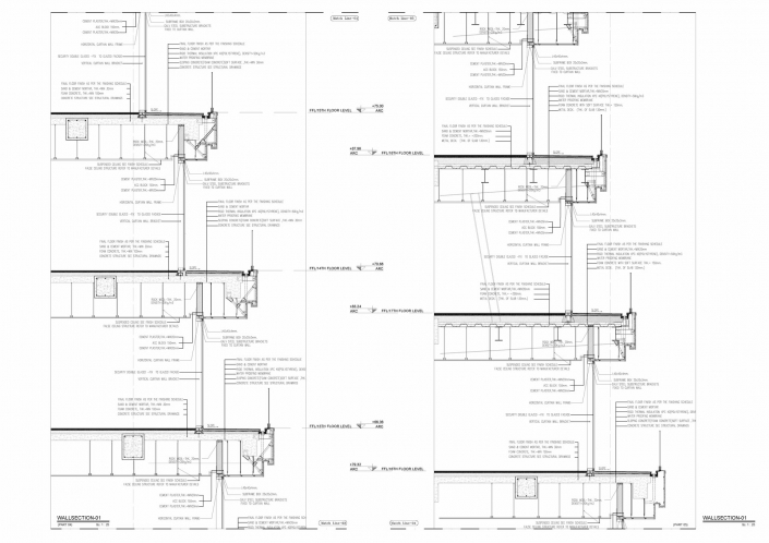
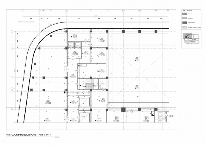
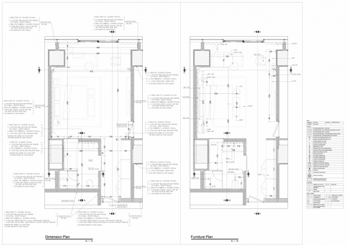
Five Stone Hotel Architectural Detail Design
Location : Baku | Area : 175000 m² | Function : 5 star Hotel | Condition : Designed & Approved | Coordination & Architectural Detail Design : Reza Eslami | Drawings : Tarlan Sedigh Zendeh, Yasaman Ali Akbarzadeh , Saied Dorostkar , Amin Reza zadeh
Main Consultant : Isatis Company, (Mr. Mahmoudi & Ms. Sorour)
Project Manager : Mohammad Abdollah Zadeh
BIM Modeling : Bonro Co. (Amir Karami)
طراحی جزییات اجرایی هتل پنج ستاره فایو استون
موقعیت : باکو | متراژ : 175 هزار متر مربع | تعداد طبقه : 22 طبقه | کاربری: هتل پنج ستاره | وضعیت: طراحی و تایید شده | کنترل و هماهنگی بین دیسیپلینی و طراحی جزییات اجرایی معماری : رضا اسلامی | ترسیمات فنی : ترلان صدیق زنده و یاسمن علی اکبر زاده، سعید درستکار، امین رضا زاده
شرکت مشاور اصلی : شرکت ایساتیس ، جناب آقای مهندس محمودی و خانم مهندس سرور
مدیر پروژه : مهندس محمد عبدالله زاده
مدلسازی رویت سازه و معماری : شرکت بن رو (مهندس کرمی)
































